179 €/mes. +E
Košice
Staré Mesto
- včera
- Vložené na TRH.sk:
- včera
- Aktualizované:
Berger Reality, s.r.o.
Dominikánske námestie 11
04001 Košice
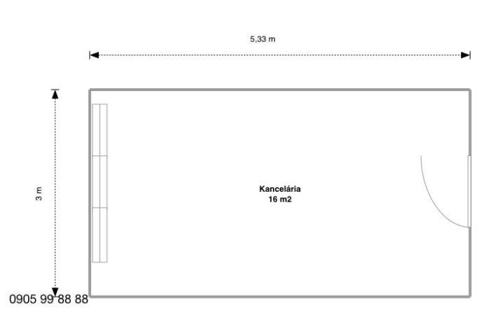
Dáme do prenájmu jednu miestnosť o výmere 16 m2 v centre Košíc. Priestor sa nachádza na Moyzesovej 36 v Košiciach na 2. poschodí. Po celkovej rekonštrukcii. V priestore je umývadlo.
Nájomné: 179 eur/mes.
Vodné, stočné, kúrenie: 109 eur/mes.
El. energia: podľa skutočnej spotreby
Depozit: 0 eur
Všetky ceny sú už s DPH.
Bezplatný wi-fi internet.
Voľné ihneď.
Volajte 0905 603 195
