- pred 17 dňami
- Vložené na TRH.sk:
- pred 16 dňami
- Aktualizované:
HALO reality, s.r.o.
T.Vansovej 509/15
97101 Prievidza
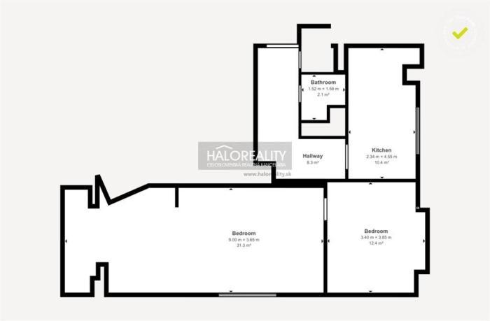
Ponúkame na trojizbový byt s rozlohou 66m2.
Nachádza sa druhom poschodí z dvoch bez výťahu a s loggiou.
K bytu prislúcha pivnica v suteréne z vchodom z boku bytového domu.
Byt má vlastné plynové kúrenie.
Plastové okná v celom byte.
Orientácie bytu je východ -západ.
DISPOZÍCIA:
Do bytu sa vchádza do vstupnej chodby v tvare L.
Ihneď za vchodovými dverami na ľavo je samostatné WC, následne je kúpeľňa.
Za bytovým jadrom na ľavo je vstup do priestrannej kuchyne s orientáciou na východ.
Oproti vstupným dverám je vstup do obývacej miestnosti s orientáciou na juh.
Z obývacej miestnosti doľava je obytná miestnosť s orientáciou na východ.
A z obývacej miestnosti doprava je tretia miestnosť s loggiou.
Orientácia miestnosti je západ.
STAV NEHNUTEĽNOSTI:
Bytové jadro je v pôvodnom stave umakart.
Kuchynská linka zánovná.
Podlahy pôvodné.
VÝHODY:
Veľkou výhodou je pôvodný stav, možnosť rekonštrukcie podľa vlastných predstav.
Vlastné kúrenie, úspora.
Nádherný výhľad na mesto z loggie.
Kľudne miesto v priamom susedstve z lesom.
MESAČNÉ NÁKLADY:
Náklady na elektrinu a plyn podľa spotreby plus fond oprav.
LOKALITA:
Pokojná na okraji mesta lemovaná lesom.
Vhodné pre klientov, ktorý preferujú kľud a prechádzky v prírode.
Dostatok parkovacích miest a zelene.
NÁZOR MAKLÉRA:
Šikovný byt s nádherným výhľadom.
Energetická trieda G.
Bližšie informácie Vám radi poskytneme na telefónnom čísle 0911 776 676 alebo na janbela@haloreality.sk. ID ponuky: PT-71906
Cena za nehnuteľnosť je KONEČNÁ, vrátane provízie, právneho servisu zabezpečeného advokátom, poradenstva, základného správneho poplatku na katastri a hypotekárnych služieb (viac na našej webovej stránke).
U NÁS MÁTE ISTOTU: --------------------------------------------------------
- pre vašu bezpečnosť sme členom ZDRUŽENIA REALITNÝCH KANCELÁRIÍ SLOVENSKA - ZRKS
- prvotriedny servis a služby po celom Slovensku, dôvera TISÍCOK PREDÁVAJÚCICH
- na našom webe nájdete viac ako 2000 referencií spokojných klientov
- nestrannosť pri prevode Vašej nehnuteľnosti
- poradíme Vám ako najlepšie predať/kúpiť nehnuteľnosť
- profesionálne obhliadky s pravidelne preškoľovanými maklérmi
- vo vybraných lokalitách pri exkluzívnych zmluvách robíme aj videoobhliadky a nakreslíme aj pôdorys
- inzerujeme na viac ako 200 portáloch
- zmluvy garantované právnikom, dohľad nad prevodom nehnuteľnosti podľa zákona
- hypotekárne služby našich partnerov na mieru
- naše služby neustále zdokonaľujeme/zaujíma nás váš názor
-----------------------------------------------------------------------------
Nehnuteľnosť predávate jeden/dvakrát za život, nechajte to na profesionálov v realitách, ktorým DÔVERUJÚ TISÍCE PREDÁVAJÚCICH PO CELOM SLOVENSKU - u nás nájdete 2000 aktuálnych ponúk.
