- pred 11 dňami
- Vložené na TRH.sk:
- pred 8 dňami
- Aktualizované:
HALO reality, s.r.o.
T.Vansovej 509/15
97101 Prievidza
Túžite po domove, kde sa spojí pohodlie moderného bytu s atmosférou pokojného života mimo ruchu mesta?
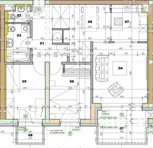
Tento moderný 3-izbový byt na druhom poschodí novostavby vo výstavbe v blízkosti Banskej Bystrice v obci Slovenská Ľupča je ideálnym riešením pre tých, ktorí chcú spojiť pohodlie, kvalitu a rozumnú investíciu. Projekt je v štádiu výstavby – čo znamená, že práve teraz je ten správny čas získať byt za výhodnejších podmienok, než po jeho dokončení.
DISPOZÍCIA:
Na úžitkovej ploche 87 m2 nájdete premyslene riešený priestor pre komfortné rodinné bývanie.
Priestranná obývacia izba s kuchyňou vytvára otvorený, svetlý priestor s priamym vstupom na balkón, ktorý oceníte pri ranných kávach či večernom oddychu. Dve samostatné izby poskytujú dostatok súkromia pre rodičov aj deti. K bytu je možné dokúpiť pivničný priestor a parkovacie státie priamo pri dome – pre vaše maximálne pohodlie.
STAV NEHNUTEĽNOSTI:
Výstavba prebieha podľa moderných štandardov a s dôrazom na kvalitu. Byt sa odovzdáva v nadštandardnom vyhotovení, ktoré už v cene zahŕňa:
- podlahové kúrenie,
- prípravu na klimatizáciu a exteriérové žalúzie,
- rekuperačný systém pre čerstvý vzduch v interiéri,
- ekologické technológie ako solárne panely a fotovoltiku, ktoré znižujú prevádzkové náklady.
LOKALITA:
Tichá časť Slovenskej Ľupče ponúka ideálnu rovnováhu medzi pokojom a dostupnosťou. V pešej vzdialenosti nájdete obchody, školu, škôlku aj zdravotné stredisko. Okolie je obklopené zeleňou a ponúka množstvo možností na oddych v prírode, pričom do Banskej Bystrice sa autom dostanete za pár minút.
NÁZOR MAKLÉRA:
Tento byt predstavuje výnimočnú príležitosť pre tých, ktorí hľadajú domov s potenciálom rastu hodnoty. Slovenská Ľupča sa dynamicky rozvíja, no zároveň si zachováva vidiecky pokoj a priateľskú atmosféru.
Ak zvažujete investíciu do nehnuteľnosti, rada vám vysvetlím, prečo môže byť tento projekt bezpečnejšou a výnosnejšou alternatívou k bežným bankovým produktom.
Chcete vedieť, ako prebiehajú platby počas výstavby alebo aké máte garancie? Dohodnime si stretnutie a rada vám všetko podrobne predstavím. Energetická trieda A.
Bližšie informácie Vám radi poskytneme na telefónnom čísle 0911 505 484 alebo na andreasimoncikova@haloreality.sk. ID ponuky: BB-71354
Cena za nehnuteľnosť je KONEČNÁ, vrátane provízie, právneho servisu zabezpečeného advokátom, poradenstva, základného správneho poplatku na katastri a hypotekárnych služieb (viac na našej webovej stránke).
U NÁS MÁTE ISTOTU: --------------------------------------------------------
- pre vašu bezpečnosť sme členom ZDRUŽENIA REALITNÝCH KANCELÁRIÍ SLOVENSKA - ZRKS
- prvotriedny servis a služby po celom Slovensku, dôvera TISÍCOK PREDÁVAJÚCICH
- na našom webe nájdete viac ako 2000 referencií spokojných klientov
- nestrannosť pri prevode Vašej nehnuteľnosti
- poradíme Vám ako najlepšie predať/kúpiť nehnuteľnosť
- profesionálne obhliadky s pravidelne preškoľovanými maklérmi
- vo vybraných lokalitách pri exkluzívnych zmluvách robíme aj videoobhliadky a nakreslíme aj pôdorys
- inzerujeme na viac ako 200 portáloch
- zmluvy garantované právnikom, dohľad nad prevodom nehnuteľnosti podľa zákona
- hypotekárne služby našich partnerov na mieru
- naše služby neustále zdokonaľujeme/zaujíma nás váš názor
-----------------------------------------------------------------------------
Nehnuteľnosť predávate jeden/dvakrát za život, nechajte to na profesionálov v realitách, ktorým DÔVERUJÚ TISÍCE PREDÁVAJÚCICH PO CELOM SLOVENSKU - u nás nájdete 2000 aktuálnych ponúk.
