- pred 48 tyždňami
- Vložené na TRH.sk:
- pred 19 dňami
- Aktualizované:
PRESTIGE Group, s.r.o.
Štefánikova 70
91101 Trenčín
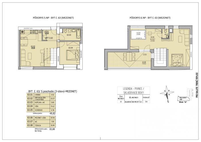
Rezidencia THERMAE v Trenčianskych Tepliciach ponúka atraktívny mezonet s terasou. Tento 3-izbový byt sa nachádza na 4. poschodí (4 a 5 poschodie) a má celkovú výmeru 103.31 m². Jeho pôdorys je dostupný tu: 63 (rezidenciathermae.sk)
Byt 63
3 izby, 4 a 5 poschodie - mezonet, celková výmera 103,31 m2
Byt 63: https://www.rezidenciathermae.sk/byt-63/
Celú ponuku nájdete na : www.rezidenciathermae.sk
Rezidencia THERMAE v Trenčianskych Tepliciach predstavuje moderné bývanie s nádychom luxusu. Ponúkaný mezonet s terasou na 4. a 5. poschodí je nielen priestranný s celkovou výmerou 103,31 m², ale aj prakticky navrhnutý pre komfortné bývanie. Súčasťou tejto exkluzívnej ponuky je aj blízkosť kúpeľov a pešej zóny, čo zvyšuje atraktivitu bytu. Výhľady na okolitú prírodu a funkčný dizajn sú len čerešničkou na torte tohto jedinečného domova. Pre tých, ktorí hľadajú spojenie pohodlia a štýlu, je Rezidencia THERMAE ideálnou voľbou.
Cena 261.375 € - Byt 63
Informácie: 0907 163 009
