- pred 12 tyždňami
- Vložené na TRH.sk:
- pred 4 dňami
- Aktualizované:
RADO Reality Group
Soblahovská, 45
91101 Trenčín
RADO Reality vo výhradnom zastúpení ponúka na predaj 4-izb. byt na Novomeského ul. v Trenčíne – sídlisko JUH.
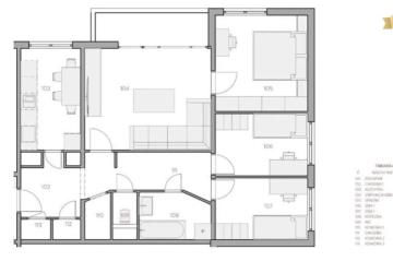
Byt s plochou 75 m² leží na 4/7 posch. panelového bytového domu s výťahom. Dispozične pozostáva zo vstupnej chodby, kuchyne s jedálenským kútom, obývacej izby s výstupom na lodžiu (4 m²), 3 spální, samostatnej kúpeľne a WC. Na chodbe bytu sú k dispozícii 2 komory.
Byt prešiel čiastočnou rekonštrukciou. Má plastové okná, murované jadro zväčšené o vstavanú skriňu, klimatizáciu. Inak je v pôvodnom stave, pripravený na rekonštrukciu. Bytový dom je zateplený, má nový výťah, vchodové dvere. K bytu patrí pivnica (murované steny, kovové dvere ) o výmere 3 m².
Energetický certifikát – B.
Ing. Monika Jánska
RADO Reality Group
Tel.: +421 905 183 714
E-mail: monika.janska@radoreality.sk
Uvedená cena je konečná a nenavyšuje sa o odmenu sprostredkovateľa, v cene je zahrnuté vyhotovenie kúpnych zmlúv, hypotekárne poradenstvo a uhradenie správneho poplatku za návrh na vklad vlastníckeho práva do katastra nehnuteľností.
RADO Reality Group je ocenená Realitnou úniou ako najlepšia realitná kancelária na Slovensku za rok 2023. Okrem iného sme držiteľmi ďalších 6 prestížnych ocenení.
