- pred 9 tyždňami
- Vložené na TRH.sk:
- pred 9 dňami
- Aktualizované:
Domy pre ľudí s.r.o.
Zahradnícka 51
821 08 Bratislava
Ahoj Briežky – 4-izbový rodinný dom v dvojdome | plánovaná výstavba 2Q/2026
Projekt Ahoj Briežky predstavuje moderný 4-izbový rodinný dom situovaný v architektonicky riešenom dvojdome, rozdelenom na dve samostatné bytové jednotky (ľavé a pravé krídlo). Každá jednotka je navrhnutá ako samostatná funkčná celok s dôrazom na maximálne súkromie, efektívne dispozičné riešenie a optimalizované prevádzkové náklady.
Upozornenie: Projekt sa aktuálne nachádza v prípravnej fáze. Výstavba zatiaľ nebola zahájená, s plánovaným začiatkom realizácie v 2. kvartáli 2026.
Lokalita – Ahoj Briežky, Bratislava
Projekt je situovaný v lokalite Ahoj Briežky na úpätí Malých Karpát, ktorá poskytuje kombináciu prírodného prostredia a výbornej dostupnosti do centra mesta. Pozemok je osadený v svahovitom teréne, čo umožňuje nadštandardné panoramatické výhľady na Bratislavu a okolie.
Lokalita zároveň ponúka priame napojenie na rekreačné zóny (Kamzík, Železná studnička) a dopravnú infraštruktúru mesta.
Základné parametre nehnuteľnosti:
Typ: rodinný dom v dvojdome
Počet izieb: 4
Úžitková plocha: 159,3 m²
Výmera pozemku: 255 m²
Terasy: 21,69 m² + 36,12 m²
Parkovanie: 3 parkovacie miesta na pozemku
Technické riešenie a štandard:
Dom je navrhnutý v štandarde holodom s dôrazom na energetickú efektívnosť a dlhodobú udržateľnosť prevádzky.
Použité technológie a materiály:
hliníkové okná s izolačným trojsklom
tepelné čerpadlo ako hlavný zdroj vykurovania
podlahové vykurovanie
moderné konštrukčné a izolačné materiály zodpovedajúce aktuálnym normám
Architektonické riešenie vychádza z čistých línií a funkčného členenia priestoru s dôrazom na prirodzené presvetlenie interiéru a prepojenie s exteriérom.
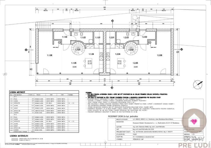
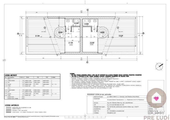
DISPOZIČNÉ RIEŠENIE
Prízemie: vstupná hala, obývacia izba s kuchyňou a jedálňou, pracovňa, kúpeľňa, komora a úložné priestory
Podlažie -1: dve samostatné spálne, kúpeľňa, priamy vstup na terasu (21,69 m²)
Najvyššie podlažie: hlavná spálňa s vlastnou kúpeľňou a šatníkom, terasa (36,12 m²) s panoramatickými výhľadmi
Projekt Ahoj Briežky je určený pre klienta, ktorý hľadá kombináciu pokojného bývania v prírode, kvalitného technického prevedenia a dobrej dostupnosti do mesta.
NAŠE SLUŽBY
Táto nehnuteľnosť je ponúkaná prostredníctvom spoločnosti Domy pre ľudí - v provízii sprostredkovateľa sú zahrnuté poplatky spojené s prevodom nehnuteľnosti - základný poplatok za návrh na vklad do katastra nehnuteľnosti vo výške 100€, poplatky za overovanie podpisov predávajúcich na zmluvách, vypracovanie zmlúv a autorizácia zmlúv advokátom, poistenie pre prípad spôsobenej škody do výšky 1,5mil€, hypotekárne poradenstvo a kompletný realitný servis.
