- pred 22 dňami
- Vložené na TRH.sk:
- pred 16 dňami
- Aktualizované:
Legacy
A
11211 B
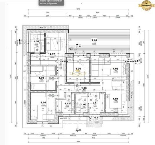
Moderný 5-izbový rodinný dom – holodom s prémiovým štandardom, Chorvátsky Grob – Sokolia ulica
Realitná kancelária LEGACY vám vo výhradnom zastúpení ponúka na predaj prízemný 5-izbový rodinný dom v stave holodom, nachádzajúci sa v pokojnej a kompletne zastavanej časti obce Chorvátsky Grob – Sokolia ulica.
Dom bol postavený s dôrazom na kvalitu, funkčnosť a technológie budúcnosti – zaručuje komfortné bývanie aj pre náročného klienta.
ZÁKLADNÉ INFORMÁCIE:
• Lokalita: Chorvátsky Grob – Sokolia ulica
• Typ: samostatne stojaci rodinný dom (bungalov)
• Počet izieb: 5
• Stav: holodom
• Pozemok: 478 m²
• Zastavaná plocha: 143 m²
• Obytná plocha: 122 m²
• Parkovanie: 3 vonkajšie státia + základová doska na garáž
TECHNICKÉ PARAMETRE A VYBAVENIE:
• Tepelné čerpadlo Viessmann
• Sádrové omietky, anhydridové potery
• Tehlová konštrukcia + 20 cm zateplenie (polystyrén)
• Predpríprava na exteriérové žalúzie
• Predpríprava na fotovoltiku
• Inteligentná elektroinštalácia (pripravená pre smart domácnosť)
• Interiérové aj exteriérové LED podsvietenie
• Vonkajšia zásuvka pre nabíjanie elektromobilu
• Murovaný plot (predný)
• 2 kúpeľne
• Technická miestnosť s práčovňou
VÝHODY NEHNUTEĽNOSTI:
• Dom je orientovaný tak, aby záhrada poskytovala maximálne súkromie
• Len dvaja susedia – zaručený pokoj
• Nachádza sa na kompletne vystavanej ulici – stavebný ruch je už minimálny
• Prémiové materiály a overený staviteľ
• Vhodné pre rodinu, ktorá hľadá moderný, efektívny a energeticky úsporný dom
• Materská škôlka hneď vo vedľajšiej ulici
LOKALITA:
Chorvátsky Grob – Čierna Voda patrí k najvyhľadávanejším lokalitám v okolí Bratislavy. Vynikajúca dostupnosť, kompletná občianska vybavenosť, množstvo zelene, ihrísk, cyklotrás a moderná infraštruktúra vytvárajú ideálne miesto pre život.
