- pred 20 dňami
- Vložené na TRH.sk:
- pred 20 dňami
- Aktualizované:
RADO Reality Group
Soblahovská, 45
91101 Trenčín
Predstavujeme Vám novostavbu rodinného domu v projekte La Provensalia, ktorá spája modernú architektúru, kvalitné technológie a funkčné dispozičné riešenie. Dom ponúka komfortné bývanie pre rodinu, priestrannú dennú zónu s priamym výstupom na terasu a súkromnú nočnú časť so šatníkom a kúpeľňou.
Detailné informácie o projekte nájdeš tu: https://laprovensalia.sk/
Začiatok výstavby je v apríli 2026.
Kolaudácia prebehne v decembri 2026.
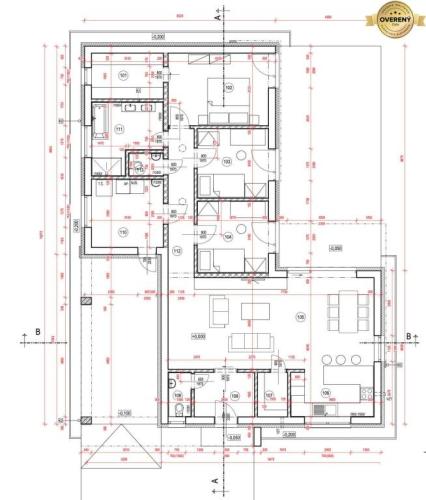
Dispozícia a úžitková plocha:
• Vstupná hala / zádverie (5,01 m²)
• Priestranná obývacia izba (35,06 m²) prepojená s kuchyňou (7,64 m²) a komorou (2,58 m²)
• Tri samostatné izby (9,53 m², 9,23 m² a 13,52 m²) – všetky so vstupom na terasu
• Šatník (6,12 m²) priamo napojený na hlavnú spálňu
• Kúpeľňa (8,09 m²) s prípravou na vaňu, sprchovací kút a dvojité umývadlo
• Dve samostatné toalety (1,93 m² a 1,50 m²)
• Technická miestnosť (9,15 m²) s prepojením na zastrešené parkovanie
• Celková obytná časť domu je doplnená o terasu zo zámkovej dlažby, prístupnú zo všetkých obytných miestností.
Celková úžitková plocha domu: 130 m²
Celková výmera parcely: 600 m²
Parkovanie a pozemok:
• 3 parkovacie miesta priamo pri dome (1x zastrešené, 2x voľné)
• Spevnený vjazd zo zámkovej dlažby
• Pozemok kompletne oplotený zváraným poplastovaným pletivom
• Odvod dažďovej vody riešený drenážnou šachtou
Technológie a vybavenie
• Tepelné čerpadlo s podlahovým vykurovaním
• Lokálna rekuperácia
• Príprava pre klimatizáciu, fotovoltaiku, vonkajší kamerový systém a elektrické žalúzie
• Predpríprava na nabíjanie elektromobilu
• Plastové okná s izolačným trojsklom
• Sadrové omietky a biela maľba
• Zateplenie 150 mm polystyrén a fasádna škrabaná omietka
• Hrubé tehlové murivo, železobetónové stropy, strecha s 400 mm izoláciou a PVC fóliou
• Verejný vodovod (DN 32, vodomerná šachta)
• Verejná splašková kanalizácia (DN 160, revízna šachta)
• NN rozvod (3x25A, rozvádzač RE)
• Telekomunikačná prípojka (Slovak Telekom, a. s.)
Dom je navrhnutý s dôrazom na komfort a energetickú úspornosť.
Cena: 435 000 € vrátane DPH
Výhody tejto nehnuteľnosti:
• Moderná novostavba od renomovaného developera
• Premyslený dispozičný koncept s priamym vstupom na terasu zo všetkých izieb
• Kompletné inžinierske siete a predprípravy na inteligentné riešenia
• Tri parkovacie miesta vrátane krytého státia
V prípade záujmu o detailnejšie informácie alebo obhliadku nehnuteľností ma neváhajte kontaktovať:
Daniel Gianmarco Križan
RADO Reality Group
Tel.: +421 908 434 975
E-mail: krizan@radoreality.sk
RADO ŠTANDARD – naše záväzky voči vám:
Kompletný právny servis vrátane zmlúv a návrhu na vklad
Hypotekárne poradenstvo šité na mieru
Úhrada správneho poplatku za vklad do katastra
Profesionálna starostlivosť počas celého procesu
Uvedená cena je konečná, pokiaľ sa zmluvné strany nedohodnú inak a nenavyšuje sa o odmenu sprostredkovateľa, v cene je zahrnuté právne poradenstvo, vyhotovenie kúpnych zmlúv, hypotekárne poradenstvo a uhradenie správneho poplatku za návrh na vklad do katastra nehnuteľností.
RADO Reality Group je ocenená Realitnou úniou ako najlepšia realitná kancelária na Slovensku za rok 2023. Okrem iného sme držiteľmi ďalších 6 prestížnych ocenení.
