- pred 156 tyždňami
- Vložené na TRH.sk:
- včera
- Aktualizované:
JUDr. Branislav Fázik, Pnorf-real estate
Závalie 11/B
92001 Hlohovec
PNORF – REAL ESTATE ponúka na predaj novostavbu ekologického a energeticky úsporného 4-izbového rodinného domu v tichom vidieckom prostredí obce Dolné Otrokovce, v rýchlom dosahu miest Piešťany, Hlohovec a Nitra. Nehnuteľnosť predstavuje ideálne spojenie moderného komfortu, nezávislosti od verejných sietí a pokojného bývania v prírode.
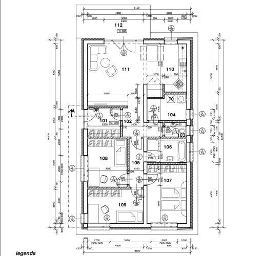
Dispozícia a výmery
Bungalov s premysleným pôdorysom ponúka:
- predsieň 5,50 m²
- chodba 5,12 m²
- hosťovská toaleta 1,82 m²
- technická miestnosť 5,55 m²
- chodba II 4,02 m²
- kúpeľňa 5,40 m²
- spálňa 13,35 m²
- izba 10,95 m²
- izba 11,05 m²
- kuchyňa 12,13 m²
- obývacia izba 20,16 m²
- terasa 14 m²
Obytná plocha: 95,05 m²
Úžitková plocha: 109,05 m²
Zastavaná plocha: 135,80 m²
Pozemok: 467 m²
Technický štandard
Dom je postavený z kvalitných materiálov s dôrazom na nízke prevádzkové náklady a dlhodobú životnosť:
- Porfix murivo (300/250/150 mm)
- plochá strecha FATRAFOL, EPS izolácia 150 + 200 mm
- minerálna vlna v strope 40 cm
- fasádny polystyrén 20 cm
- plastové okná s trojsklom
- tepelné čerpadlo voda–vzduch + podlahové vykurovanie
- anhydritové potery, sadrové omietky
- predpríprava na rekuperáciu
- komín LEIER 6 m
- samonosná základová doska
- biela maľovka v interiéri
Siete a energetická nezávislosť
- vlastná vŕtaná studňa s certifikovanou pitnou vodou
- elektrická prípojka
- betónová žumpa
- nízka energetická náročnosť vďaka optimalizovanému zatepleniu a moderným technológiám
Pozemok a lokalita
Rovinatý pozemok orientovaný na juh ponúka súkromie a krásny výhľad smerom k ochrannému zdroju pitnej vody. Dostupnosť autom: Hlohovec 15 km, Piešťany 22 km, Nitra 22 km, Bratislava 87 km.
Hlavné benefity
novostavba v štádiu holodomu
ekologické a úsporné bývanie
vlastný zdroj pitnej vody
južná orientácia
tichá a bezpečná lokalita
vybudovaná prístupová cesta
ideálne pre rodinu aj rekreačné bývanie
________________________________________
PNORF – REAL ESTATE: Váš partner pre prémiové nehnuteľnosti.
Profesionálne právne a realitné služby sú u nás samozrejmosťou. Pre viac informácií a dohodnutie obhliadky nás prosím kontaktujte: Tel.: 0904 825 980 alebo E-mail: pnorf.realestate@hotmail.com. Poskytujeme BEZPLATNÉ HYPOTEKÁRNE PORADENSTVO.
