- pred 14 tyždňami
- Vložené na TRH.sk:
- dnes
- Aktualizované:
JUDr. Branislav Fázik, Pnorf-real estate
Závalie 11/B
92001 Hlohovec
Exkluzívne iba v PNORF – REAL ESTATE ponúkame na predaj priestranný, rožný, samostatne stojaci, dvojpodlažný 7-izbový rodinný dom s garážou a prekrytou terasou. Nehnuteľnosť sa nachádza v jednej z najžiadanejších a najtichších lokalít Hlohovca – na Jarmočnej ulici.
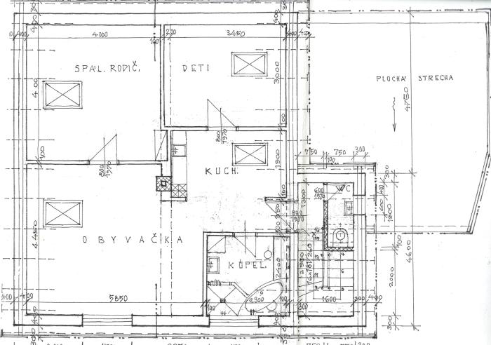
DISPOZÍCIA A PARAMETRE (Stavba z r. 2008) Dom je ideálny pre viacgeneračné bývanie alebo rodiny s deťmi.
Prízemie (110 m²): pozostáva z predsiene, kuchyne, komory, kúpeľne, samostatnej toalety a 4 nepriechodných izieb.
Poschodie (90 m²): je v stave hrubej stavby, čo novému majiteľovi umožňuje upraviť si dispozíciu podľa vlastných predstáv (pôvodný projekt počítal s obývacou izbou, kuchyňou, dvoma spálňami, kúpeľňou a samostatnou toaletou). Pozn.: Schodisko na podlažie je naplánované v predsieni, aktuálne nie je zrealizované.
Zázemie: Vedľa domu sa nachádza garáž, cez ktorú je prístup do pivnice (situovanej pod kuchyňou). Pred garážou je vybudovaná príjemná prekrytá terasa s vonkajším sedením.
TECHNICKÉ ÚDAJE
• Konštrukcia: Prízemie – tehla, poschodie – Ytong.
• Zateplenie: 100 mm polystyrén, strešná krytina – škridla.
• Vybavenie: Plastové okná, sadrové omietky, medená elektroinštalácia, betónové podlahy (kombinácia plávajúcej podlahy a dlažby).
• Inžinierske siete: Napojenie na všetky IS, vykurovanie a ohrev vody zabezpečuje plynový kondenzačný kotol.
POZEMOK A LOKALITA Dom s predzáhradkou stojí na rovinatom, rožnom pozemku s výmerou 449 m² (cca 15 m x 30 m) na rozhraní ulíc Jarmočná a Tehelná. Lokalita pod centrom mesta zaručuje minimálnu frekvenciu vozidiel, ticho a zároveň perfektnú dostupnosť k obchodným reťazcom a službám.
HLAVNÉ PREDNOSTI DOMU ✔ Výnimočná lokalita: Jarmočná ulica patrí k top adresám v Hlohovci. ✔ Viacgeneračný potenciál: Úžitková plocha až 230 m². ✔ Variabilita: Možnosť dokončiť poschodie presne podľa vlastného vkusu. ✔ Kompletné siete: Moderný kondenzačný kotol a nízke prevádzkové náklady.
PNORF – REAL ESTATE: Váš partner pre prémiové nehnuteľnosti.
Profesionálne právne a realitné služby sú u nás samozrejmosťou. Pre viac informácií a dohodnutie obhliadky nás prosím kontaktujte: Tel.: 0904 825 980 alebo E-mail: pnorf.realestate@hotmail.com. Poskytujeme BEZPLATNÉ HYPOTEKÁRNE PORADENSTVO.
