- pred 11 tyždňami
- Vložené na TRH.sk:
- pred 13 dňami
- Aktualizované:
REALISS - reality, s.r.o.
Nám. Ľ. Štúra 5/5
95701 Bánovce nad Bebravou
Lokalita:
Tento nádherný rodinný dvojdom bude situovaný v príjemnom prostredí obce Horňany. Obec je obklopená prevažne poliami a nájdete v nej vzhľadom na jej veľkosť základnú občiansku vybavenosť ( obchod a obecný úrad ). Pre Vaše deti je však k dispozícii škôlka v susednej obci Dežerice, ale tiež máte možnosť využívať školy a škôlky priamo v okresnom meste, alebo v obci Motešice, ktoré sú ľahko dostupné.
Infraštruktúra:
Samotná lokalita projektu sa nachádza v tichom okrajovom prostredí obce, na rovinatej a na slnečnej parcele. Všetka potrebná infraštruktúra, vrátane nových ciest, osvetlenia, chodníkov a prípojok na siete, ako je elektrická energia a vodovod, bude nanovo vybudovaná ( proces výstavby bol započatý a investor má vydané potrebné stavebné povolenia ).
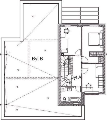
Dvojdom:
Tento dvojdom pozostáva z dvoch samostatných rodinných domov - rodinného domu A a rodinného domu B, ktoré sú spojené spoločnou stenou. Táto konštrukcia zabezpečuje zníženie tepelných strát a maximalizuje ekonomické využitie. Zároveň maximalizuje využitie pozemku. Oba rodinné domy sú navrhnuté s dôrazom na čo najnižšiu energetickú náročnosť a optimálne priestorové využitie.
Rodinný dom A:
Rodinný dom A je dvojpodlažný a jeho prízemné podlažie pozostáva zo vstupnej haly so šatníkovou skriňou. toalety s umývadlom pre hostí. otvoreného priestoru obývačky s kuchyňou a schodiska na poschodie. V obývačke vybavenej vstupom na slnečnú terasu cez veľké francúzske dvere je možnosť umiestnenia krbu ( komín k dispozícii ). Poschodie poskytujúce rodinné súkromie je tvorené troma priestrannými samostatnými izbami s výhľadom na pozemok a veľkou rodinnou kúpeľňou.
Dispozícia:
Prízemie: vstupná hala so šatníkovou skriňou, toaleta pre hostí, otvorený priestor obývačky s kuchyňou a schodisko na poschodie
Poschodie: tri priestranné samostatné izby a veľká rodinná kúpeľňa
Rodinný dom B:
Rodinný dom B je prízemný. s bezbariérovým vstupom. Prízemné obytné podlažie tvorí vstupná hala s priestorom pre šatníkovú skriňu. toaletou vybavenou umývadlom. centrálnej chodby spájajúcej tri samostatné izby a rodinnú kúpeľňu. Chodba následne prechádza do presvetleného priestoru obývačky s kuchyňou so vstupom na slnečnú terasu cez veľké francúzske dvere. Kuchyňa v tomto dome je vybavená aj komorou.
Dispozícia: Vstupná hala s priestorom pre šatníkovú skriňu a toaletu s umývadlom, Tri samostatné izby a rodinná kúpeľňa
Stav domov:
Cena rodinného domu je prerátaná do stavu holodom. V tomto prípade bude rodinný dom kompletne zateplený. vybavený modernými oknami s izolačným trojsklom a vykurovanie bude zabezpečené úspornou a modernou technológiou vykurovania tepelným čerpadlom ( doplatok len 6.000 EUR + možnosť vybavenia dotácie) s podlahovým vykurovaním. Vyváženej teplote a úspore bude pomáhať lokálna rekuperačná jednotka. Rodinný dom bude v prípade holodomu kompletne zateplený ( podlahy. obvodový plášť 20 cm polystyrén. stropy 30 cm minerálna vlna ). Dom bude odovzdaný v ponukovej cene takmer dokončený. chýbať bude položiť podlahy a interiérové dvere. obložiť a namontovať sanitu v kúpeľni a WC. osadiť kuchynskú linku...
Dom je možné objednať aj do stavu hrubej stavby ( základová doska s obvodovým murivom. vnútorné priečky. okná. vstupné dvere. strecha. klampiarske práce...). Cenu vybavenia hrubá stavba poskytneme na vyžiadanie.
Úžitková plocha domu A tvorí 109.5 m2 a domu B 98.5 m2.
Pozemok:
Parcelu určenú na jeho výstavbu si môžete vybrať ( určené sú od čísla 497-31 až po 42 ) a pozrieť na stránke projektu IBV Horňany https://www.realiss.sk/hornany
Náš projekt rodinného dvojdomu v obci Horňany ponúka moderný štýl bývania s dôrazom na efektívnosť a pohodlie. Nechajte sa očariť touto úžasnou príležitosťou a kontaktujte nás pre viac informácií a osobnú prehliadku.
Cena: Typ A - 109.000 EUR holodom, Typ B - 99.000 EUR holodom
V projekte je možné vybrať si aj kúpu len stavebného pozemku.
Viac informácií a výber pozemkov na:
https://www.realiss.sk/hornany
