- pred 26 tyždňami
- Vložené na TRH.sk:
- pred 26 dňami
- Aktualizované:
REALITY HOUSE, spol.s.r.o.
Štefánikova 10
071 01 Michalovce
REALITY HOUSE Vám ponúka:
ZNÍŽENÁ CENA ....
Rozostavanú priestrannú NOVOSTAVBU v tichej lokalite obce, len 14 km od mesta Michalovce v obci DÚBRAVKA.
- ponúka sa v stave HRUBA STAVBA s garážou
- s pekným výhľadom na obecný park
- s praktickou kompaktnou dispozíciou interiéru
- rozostavaná novostavba sa nachádza na pozemku s rozlohou 1447 m2
- zastavaná plocha domu na 184,5 m2 ( rozmery domu 15.6 m x 14,4 m )
- úžitková plocha domu 144,6 m2
- bez okien
Technické údaje:
- stavba z tehly
- strecha - drevený krov, krytina škridla
- prípojka vody, kanalizácie , elektriny a plynu - sú pri pozemku
- k dispozícii je kompletná dokumentácia
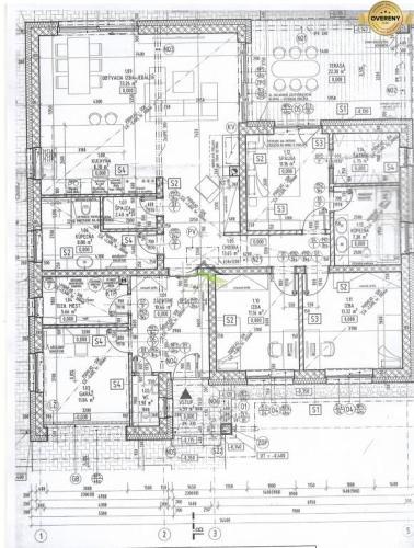
DISPOZÍCIA:
Do domu sa vstupuje zádverím, prípadne garážou, ktorá je prepojená so zádverím.
Na zádverie sú prepojene priestory WC, chodby a technickej miestnosti.
Stredová chodba rozdeľuje priestory domu na dennú a nočnú časť.
Nočná časť domu tvorená miestnosťami ako spálňa so šatníkom a s vlastnou kúpeľnou, 2 izby a ďalšia kúpeľňa.
Dennú časť tvorí otvorený priestor kde sa nachádza jedáleň, kuchyňa, špajza, obývacia izba s výstupom na priestrannú terasu.
Na pozemku je dostatok priestoru na bazén, záhradku ...., pozemok je kompletne oplotený
V záhrade sa nachádza aj vlastná studňa a plechová garáž ideálna na uloženie stavebného materiálu.
Dom je vhodný pre klientov, ktorí hľadajú naozaj súkromie a pokojnú lokalitu
Bezproblémový prístup do okolitých dedín, vhodná aj pre klientov, ktorí hľadajú väčší pozemok.
Výhodou tejto rozostavanej Novostavby je možnosť dokončiť podľa vlastných predstav.
V obci Dúbravka sa nachádza zrekonštruovaná materská škola, potraviny, pizzeria, kultúrny dom, detské ihrisko, futbalové ihrisko.
CENA : 169 000 € + dohoda možná
Všetky bližšie informácie Vám radi poskytneme telefonicky alebo osobne na obhliadke.
Kontakt :
Eva Sojková
0907 919 097
sojkova@realityhouse.sk
REALITY HOUSE
Štefánikova 10
Michalovce
