- pred 22 dňami
- Vložené na TRH.sk:
- pred 22 dňami
- Aktualizované:
HALO reality, s.r.o.
T.Vansovej 509/15
97101 Prievidza
Ponúkame na prenájom atypický kancelársky priestor v podkroví (Open Space Office alebo Ateliér) v Bratislave na Kolibe v mestskej časti Nové Mesto Vinohrady, situovaný v administratívnom objekte na 4/4 poschodí v podkroví (bez výťahu) s panoramatickým výhľadom na mesto. Na tomto poschodí je iba jediný priestor. Priestore je možnosť zriadenia: kozmetické štúdio, prípadne zriadenie ateliéru napr. pre grafické štúdio alebo architektonické štúdio, ale aj modernú kanceláriu Open Space Office.
MESAČNÉ NÁKLADY:
Cena prenájmu v sume 600 €/mesačne pozostáva:
- Prenájom 450 € + 50 €//mesačne parkovacie miesto
- Prevádzkové náklady a energie (PNaE) spolu 100 €//mesačne
Požaduje sa jednorázový depozit vo výške 600 € vrátane PNaE
a odmena pre sprostredkovateľa vo výške 500 €
DISPOZÍCIA:
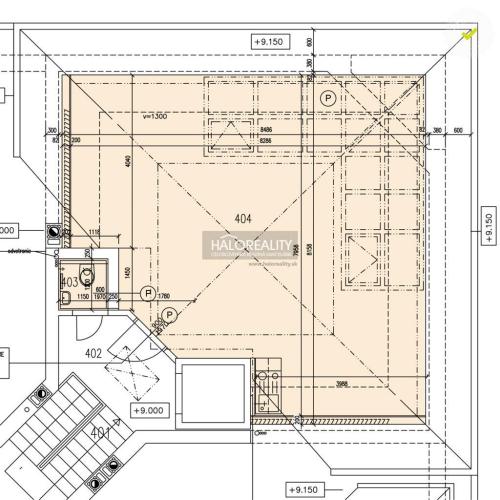
Celková výmera je 62,59 m2, dispozícia pozostáva z jednej priestrannej miestnosti s plochou 55,80 m2, kde je aj skrinka s umývacím drezom, ďalej pozostáva zo vstupnej haly s plochou 5,40 m2 a toalety s umývadlom o ploche 1,39 m2. K prenajatému priestoru prislúcha aj 1 parkovacie miesto pri budove. V priestore je aj klimatizácia.
LOKALITA:
Nehnuteľnosť sa nachádza na úpätí Malých Karpát. Na okraji Koliby, resp. v blízkosti Koliby, sa nachádza vrch Kamzík a televízna veža na Kamzíku. V roku 2005 bola zrekonštruovaná lanovka zo Železnej studienky na Kolibu, ktorá je určená pre peších turistov a cyklistov. V lete je Koliba spolu s okolitými vyvýšeninami a svahmi vhodným miestom pre pešie i cyklistické vychádzky
NÁZOR MAKLÉRA:
Odporúčam tento priestor pre jeho výnimočnosť - Vynikajúca lokalita, veľmi dobrá dispozícia s výhľadom na Bratislavský hrad a Slavín. Je vhodný pre výtvarníkov, architektov alebo IT špecialistov. Energetická trieda G.
Bližšie informácie Vám radi poskytneme na telefónnom čísle 0902 341 366 alebo na dusanpozgay@haloreality.sk. ID ponuky: BA-71083
U NÁS MÁTE ISTOTU: --------------------------------------------------------
- pre vašu bezpečnosť sme členom ZDRUŽENIA REALITNÝCH KANCELÁRIÍ SLOVENSKA - ZRKS
- prvotriedny servis a služby po celom Slovensku, dôvera TISÍCOK PREDÁVAJÚCICH
- na našom webe nájdete viac ako 2000 referencií spokojných klientov
- nestrannosť pri prevode Vašej nehnuteľnosti
- poradíme Vám ako najlepšie predať/kúpiť nehnuteľnosť
- profesionálne obhliadky s pravidelne preškoľovanými maklérmi
- vo vybraných lokalitách pri exkluzívnych zmluvách robíme aj videoobhliadky a nakreslíme aj pôdorys
- inzerujeme na viac ako 200 portáloch
- zmluvy garantované právnikom, dohľad nad prevodom nehnuteľnosti podľa zákona
- hypotekárne služby našich partnerov na mieru
- naše služby neustále zdokonaľujeme/zaujíma nás váš názor
-----------------------------------------------------------------------------
Nehnuteľnosť predávate jeden/dvakrát za život, nechajte to na profesionálov v realitách, ktorým DÔVERUJÚ TISÍCE PREDÁVAJÚCICH PO CELOM SLOVENSKU - u nás nájdete 2000 aktuálnych ponúk.
