149 €/mes. +E
Košice
Staré Mesto
- pred 57 tyždňami
- Vložené na TRH.sk:
- pred 2 dňami
- Aktualizované:
Berger Reality, s.r.o.
Dominikánske námestie 11
04001 Košice
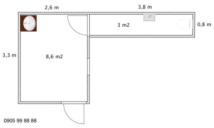
Dáme do prenájmu priestor na Mäsiarskej ul. v Košiciach na prízemí o celkovej výmere 11 m2. Priestor pozostáva z 1 miestnosti v ktorej je umývadlo. K priestoru patrí samostatné WC
s umývadlom. Priestor je po celkovej rekonštrukcii.
Nájomné: 149 eur/mes.
Vodné, stočné, kúrenie: 99 eur/mes.
El. energia: vlastný elektromer
Depozit: 0 eur
Voľné ihneď.
Volajte: 0915 880 846
