- pred 49 tyždňami
- Vložené na TRH.sk:
- pred 3 dňami
- Aktualizované:
PAKTIV s.r.o.
Hlavná 22
91701 Trnava
Ponúkame na predaj exkluzívny stavebný pozemok v atraktívnej lokalite Jaslovské Bohunice, časť Paderovce, len 12 km od Trnavy. Tento rožný pozemok s rozlohou 501 m² je ideálnou voľbou pre tých, ktorí hľadajú dokonalé miesto na výstavbu rodinného domu v pokojnej obci s výbornou dostupnosťou do mesta. Nachádza sa priamo v centre obce a vďaka prístupu z troch strán ponúka jedinečnú flexibilitu pri plánovaní výstavby aj umiestnenia vstupov.
Všetky inžinierske siete sú dostupné priamo pred pozemkom, čo výrazne uľahčuje a urýchľuje proces výstavby. Pozemok je kompletne oplotený a v záhrade sa nachádzajú ovocné stromy, ktoré vytvárajú príjemnú atmosféru a umožňujú vychutnať si vlastnú úrodu.
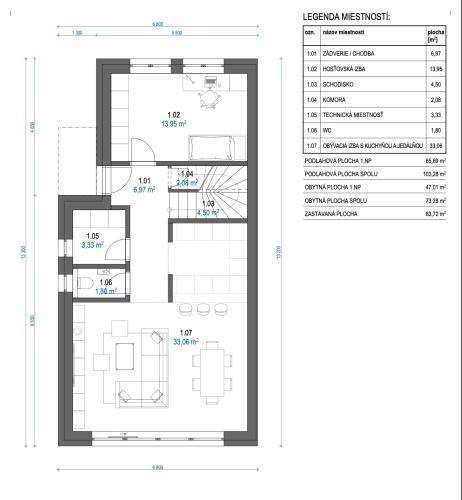
Súčasťou ponuky je aj vizualizácia moderného 4-izbového rodinného domu, ktorá poskytuje inšpiráciu na budúce využitie priestoru.
Lokalita Jaslovské Bohunice je ideálnym miestom pre komfortné bývanie v blízkosti prírody s rýchlou dostupnosťou do mesta. Okolie ponúka bohaté možnosti pre relax a aktívny životný štýl, vrátane turistických trás a cyklotrás.
Táto ponuka predstavuje mimoriadne výhodnú investičnú príležitosť, pretože podobné pozemky sa v tejto oblasti objavujú len zriedka a za takúto cenu sú rýchlo predané. Cena zahŕňa kompletný právny servis vrátane vypracovania všetkých potrebných zmlúv, návrhu na vklad do katastra, notárskych poplatkov a odovzdávacieho protokolu.
Neváhajte a využite túto jedinečnú príležitosť. Pre viac informácií alebo dohodnutie obhliadky nás kontaktujte na telefónnom čísle 0905/331130 alebo emailom na paktiv@paktiv.sk. Tento pozemok sa na trhu určite dlho neudrží.
© Text a fotografie sú autorským dielom a majetkom realitnej kancelárie PAKTIV, s.r.o.
