dohodou
okres
Prievidza
Prievidza
Veľkonecpalská
- pred 80 tyždňami
- Vložené na TRH.sk:
- pred 3 dňami
- Aktualizované:
agentúra alpia, s.r.o.
A. Kmeťa 24
03601 Martin
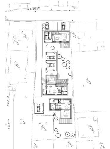
Alpia reality vám ponúka na predaj stavebný pozemok v meste Prievidza, časť Necpaly.
Na pozemku sú všetky inžinierske siete, voda, elektrina, plyn, kanalizácia.
Rozloha pozemku je 1468 m2.
Je možné ho rozdeliť na 3 stavebné parcely.
Prístupová cesta je spevnená pre všetky pozemky.
Pre viac informácií alebo obhliadku nás kontaktujte na t.č. 0917047195
