- pred 42 tyždňami
- Vložené na TRH.sk:
- pred 20 dňami
- Aktualizované:
realityalpia, s.r.o.
A. Kmeťa 24
03601 Martin
Hľadáte jedinečné bývanie s možnosťou podnikania v centre mesta? Táto ponuka je pre vás ideálna!
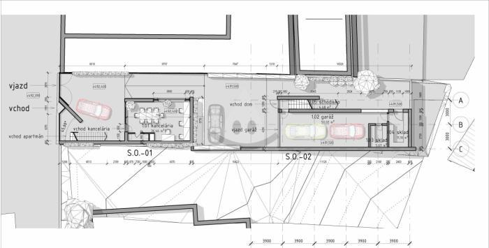
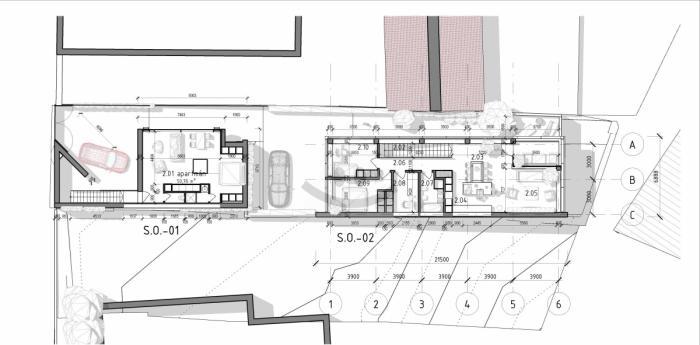
Ponúkame na predaj pozemok v pamiatkovej zóne, priamo susediaci s Mestským úradom, ktorý v sebe spája historický šarm s moderným potenciálom.
Čo získate?
Lukratívna poloha: Bývanie a podnikanie v absolútnom centre mesta Ružomberok.
Schválený projekt: Projektantom navrhnutá štúdia, ktorá citlivo spája pôvodný charakter územia s možnosťou výstavby polyfunkčného objektu.
Polyfunkčné využitie: Vďaka územnoplánovacej informácii je možné na pozemku realizovať parkovacie priestory, kancelárie a reprezentatívne rodinné bývanie.
Kompletná infraštruktúra: Pozemok disponuje prípojkou na elektrinu a vodovod, plyn a kanalizácia sa nachádzajú v blízkosti.
Predstavte si:
Život v historickom centre mesta s vlastnou kanceláriou a moderným rodinným domom. Všetko na jednom mieste!
Pre viac informácií:
Neváhajte nás kontaktovať! Radi vám osobne predstavíme podrobnosti štúdie a potenciál tejto výnimočnej nehnuteľnosti na obhliadke alebo v našej realitnej kancelárii.
Zaujala vás táto jedinečná ponuka?
Kontaktujte nás ešte dnes a dohodnite si stretnutie!
