42 000 €
okres
Prievidza
Tužina
- pred 178 tyždňami
- Vložené na TRH.sk:
- pred 29 dňami
- Aktualizované:
agentúra alpia, s.r.o.
A. Kmeťa 24
03601 Martin
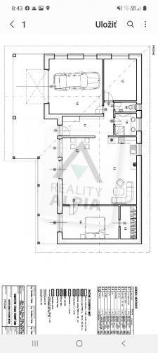
Reality Alpia ponúka na predaj menší stavebný pozemok o rozlohe 350m2 v obci Tužina s platným stavebným povolením od Mája 2022.
S pozemkom sa predávajú aj projekty 3-izbového rodinného domu s garážou.
Projekt sa dá ešte meniť.
Na pozemku sú inžinierské siete elektrika, voda.
Pozemok sa nachádza v tichej lokalite.
Pre viac informácií alebo obhliadku nás kontaktujte na t.č. 0917047195
